Projekt "Angerhof München"
Projekt Angerhöfe Bürohaus mit Tiefgarage 2 Netze
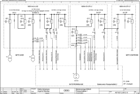
Anlage: Notstrom 500 kVA
Motor: DEUTZ BF 8 M 1015 CP
Generator: MeccAlte ECO 40 3S4
Bildergallerie
![]() |
||||||||||
![]() |
![]() |
![]() |
![]() |
![]() |
![]() |
|||||
Herausforderungen
- Kranen über ein 30 m hohes Gebäude in der Münchner Innenstadt
- zerlegte Einbringung in den Aggregateraum
- 70 m Abgasleitung bis übers Dach
- Schalldämmung 65 dB (A) in 1m
Elektrische Ausführung
- Notstromautomatik mit Rücksynchronisierung
- Symap XG Steuerung 2 x Synchronisierrelais integriert
- 2 Netze / Steuerung von 6 Leistungsschaltern
- Automatisierte Tagestankbefüllung inkl. NivauauswertungAutomatische
- Zu- und Abluftklappen - Steuerung
- Lecküberwachung
- Sprinklerbetrieb






